Casatoo
Casatoo
Sign In
1 / 3
369 000 €
1845 €/m²
28 days ago
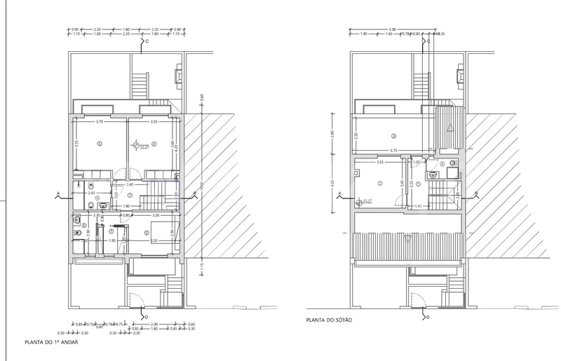
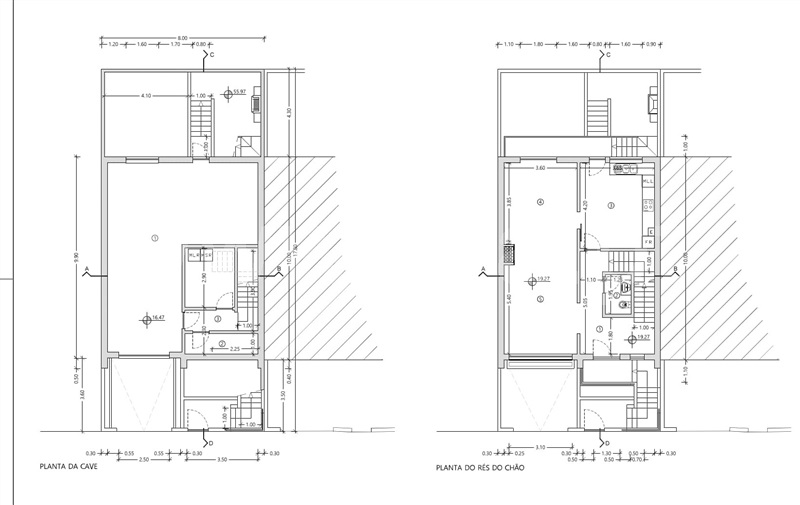
Rooms
3
Area
200m²
Elevator
Parking
Quick Actions
View Source Listing
View on Google Maps
Share Listing