Casatoo
Casatoo
Sign In
1 / 6
78 000 €
1219 €/m²
17 days ago
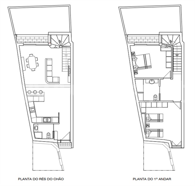
Area
64m²
Elevator
Parking
Quick Actions
View Source Listing
View on Google Maps
Share Listing