Casatoo
Casatoo
Sign In
1 / 20
230 000 €
3433 €/m²
3 days ago
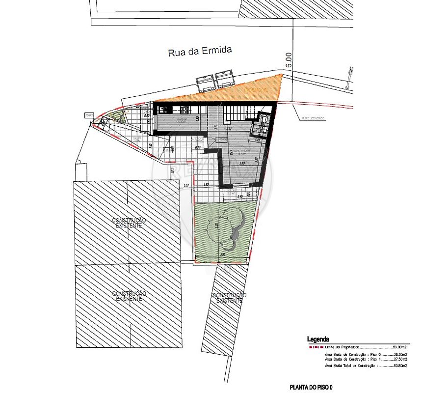
Rooms
1
Area
67m²
Elevator
Parking
Quick Actions
View Source Listing
View on Google Maps
Share Listing