Casatoo
Casatoo
Sign In
1 / 16
85 000 €
2656 €/m²
6 days ago
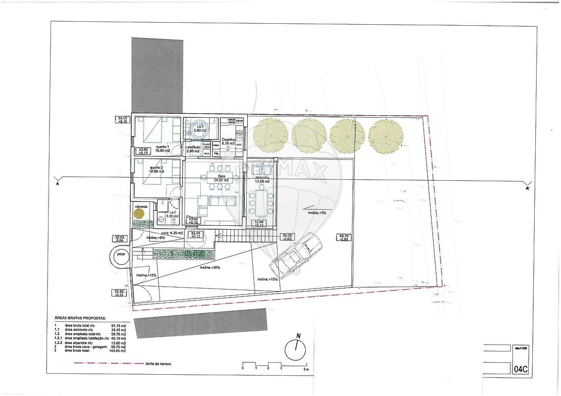
Area
32m²
Elevator
Parking
Quick Actions
View Source Listing
View on Google Maps
Share Listing