Casatoo
Casatoo
Sign In
1 / 17
385 000 €
2655 €/m²
15 days ago
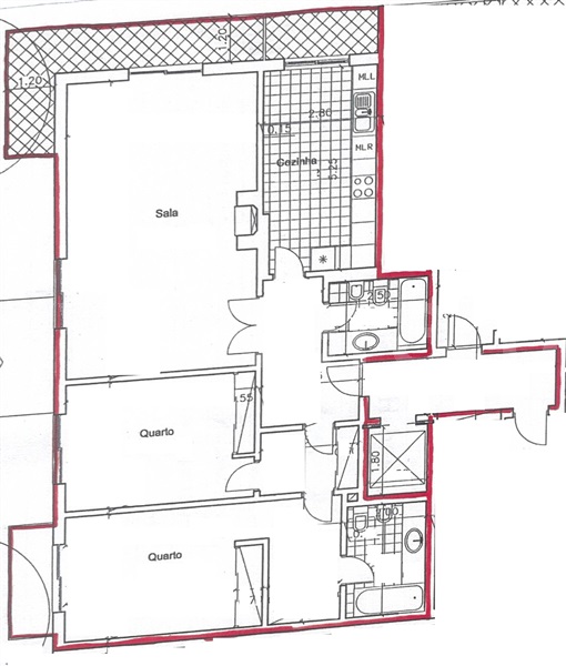
Rooms
2
Area
145m²
Elevator
Parking
Quick Actions
View Source Listing
View on Google Maps
Share Listing