Casatoo
Casatoo
Entrar
1 / 11
370 000 €
2102 €/m²
Publicado há aproximadamente 2 meses
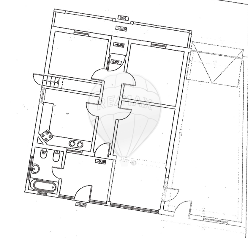
Área
176m²
Elevador
Estacionamento
Ações Rápidas
Ver Original
Ver no Google Maps
Partilhar Anúncio